115 HARLACHER ROADEAST BERLIN, PA 17316




Mortgage Calculator
Monthly Payment (Est.)
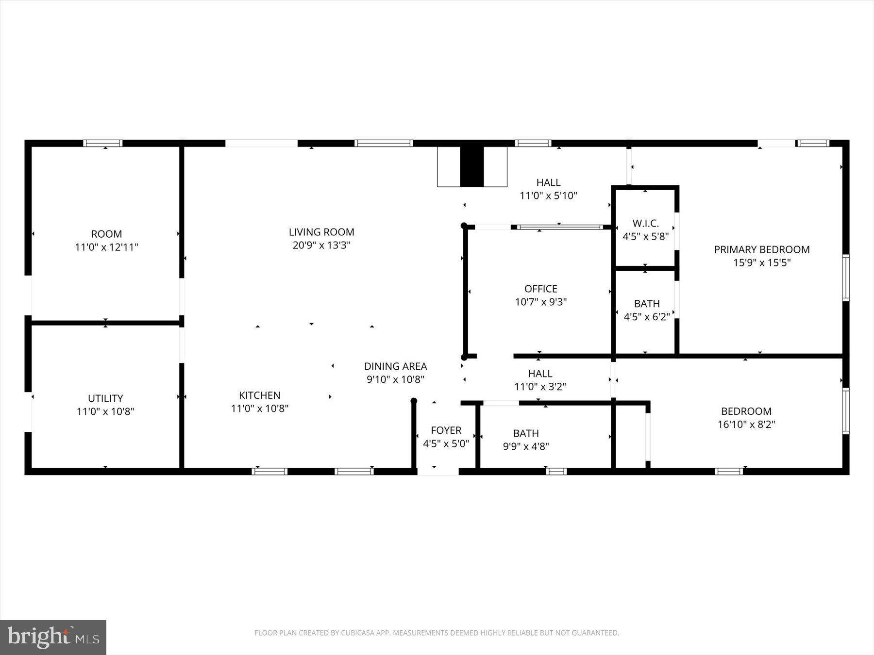
$2,190Escape the ordinary with this one-of-a-kind ranch-style home set on 12.9 beautiful acres — a versatile property perfect for farming, hunting, or homesteading. With approximately 70% of the land cleared and ready for your vision, this mini-farm offers endless opportunities to cultivate crops, raise animals, or simply enjoy the open space and natural beauty. Built with sustainability and comfort in mind, the 3-bedroom, 2-bath plus office home showcases a rare blend of eco-friendly innovation and timeless craftsmanship. Set well back off the road, the home was constructed with straw-bale insulation encased in lime stucco, the home features one of the most fire-resistant, pest-repellent, and naturally breathable building materials available — ensuring exceptional energy efficiency and a healthy indoor environment year-round. Step inside to find a welcoming eat-in kitchen, radiant floor heating, and smart passive solar design. The home is perfectly positioned to capture the sun’s warmth in winter while staying shaded and cool in summer, offering comfortable living in every season. Situated in a Clean & Green zone, this property benefits from exceptionally low taxes, adding to its appeal as both an environmentally and financially sustainable investment. Whether you dream of creating a self-sufficient homestead, maintaining a hobby farm, or establishing a peaceful hunting and nature retreat, this property provides the space, flexibility, and charm to make it your own. An exceptionally rare find that blends modern sustainability with rural freedom — your next chapter begins here.
| 5 hours ago | Listing first seen on site | |
| 5 hours ago | Listing updated with changes from the MLS® |
The real estate listing information is provided by Bright MLS is for the consumer's personal, non-commercial use and may not be used for any purpose other than to identify prospective properties consumer may be interested in purchasing. Any information relating to real estate for sale or lease referenced on this web site comes from the Internet Data Exchange (IDX) program of the Bright MLS. This web site references real estate listing(s) held by a brokerage firm other than the broker and/or agent who owns this web site. The accuracy of all information is deemed reliable but not guaranteed and should be personally verified through personal inspection by and/or with the appropriate professionals. Properties in listings may have been sold or may no longer be available. The data contained herein is copyrighted by Bright MLS and is protected by all applicable copyright laws. Any unauthorized collection or dissemination of this information is in violation of copyright laws and is strictly prohibited. Copyright © 2020 Bright MLS. All rights reserved.
Did you know? You can invite friends and family to your search. They can join your search, rate and discuss listings with you.